jchatt
Aktives Mitglied
Meines Wissens ist es derzeitiger Stand der Archäologie, dass die von Dir genannten linksrheinischen Lager zu Zeiten des Varus und Tiberius gar keine Innenbebauung aufweisen. Demnach handelte es sich nur um Etappenlager für Verlegungen vom linksrheinischen Hinterland nach uns weitgehend unbekannte Standlager in der rechtsrheinischen Provinz. Die Soldaten haben innerhalb der Umgrenzungen wohl nur ihre Zelte aufgeschlagen. Deshalb rätsele ich darüber, wie Du eine nicht vorhandene linksrheinische Innenbebauung mit der archäologisch nachgewiesenen Innenbebauung von Haltern vergleichen kannst.
Wie Du in der Grafik oben siehst haben die hohen Herren, ab Zenturio aufwärts, auf dem Hunerberg auch schon in festen Unterkünften überwintert.
Ausführlicher steht das hier:
http://dare.ubn.kun.nl/bitstream/2066/27352/3/27352___.PDF
Die Legionäre haben wohl in der Tat gezeltet.
Die Holzerdemauer, die Tore und die Zenturionenhäuser haben die selbe Ausbaustufe wie in Oberaden. Man kann also hier auch auf eine zumindest einjährige Überwinterung schliessen.
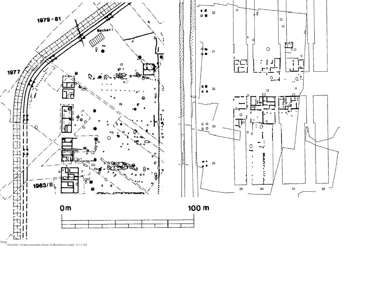
Hier mal die ergrabenen Kohortenlagerplätze aus Oberaden(links) und Nijmegen(rechts):

Diese Lagerplätze nehmen in beiden Lagern den selben Raum ein. Je Kohorte ein 66,6m Quadrat. Die Zenturie entsprechend auf einem Streifen von 11,1m x 66,6m.
Legt man ein Raster von 11,1mx11,1m über die Lagerkonstruktionen, sieht man, daß Bebauung und Strassen immerwieder synchron zum Raster verlaufen.

Oberaden

Nijmegen(Hunerberg)
Der Mittelpunkt dieses Rasters liegt in Oberaden in einem Zimmer des Praetoriums. Das Praetorium seinerseits liegt wiederum auf einem 66,6m66,6m Quadrat. Auf dem Hunerberg scheint dort ein principiaartiges Gebäude zu stehen.
Das augusteische Lager auf dem Hunerberg wird kurz vor Oberaden datiert. Es könnte sich also um Legionen des Drusus vor seiner Rheinüberquerung gehandelt haben.
Den Begriff Standlager würde ich für diese Zeit nicht verwenden wollen. Das Standlager war das Winterlager. Dieses wurde aber wie es scheint ständig den Eroberungen entsprechend verlegt. Zwar war das Imperium schon größtenteil konsolidiert, die Aussengrenzen aber noch nicht erstarrt.
Die strenge normierte Bauweise haben wir in Haltern nicht mal ansatzweise. Entweder war der dortige Vermesser total besoffen oder es handelt sich schlichtweg um eine andere Konstruktion für eine andere Funktion.
Gruß
jchatt




